Addoor Sticky

El Polígono Industrial de Puente Castro no podrá estar listo esta legislatura por la compleja 'maraña administrativa'

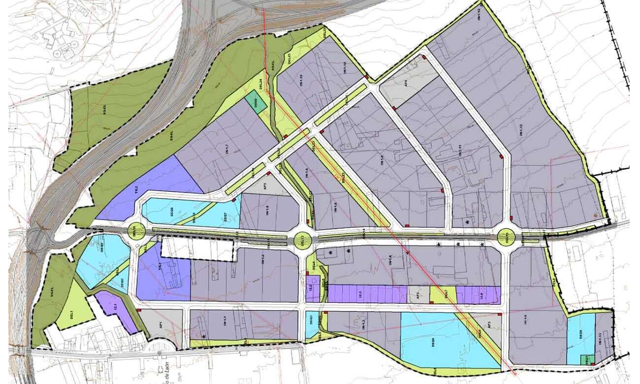
Imagen del plano sobre el que se levantará el Polígono industrial Puente Castro.
El Ayuntamiento de León remarca que los trámites burocráticos ralentizan un proyecto clave para ampliar el suelo industrial de la ciudad
 

El Ayuntamiento de León reconoce que el nuevo Polígono Industrial de Puente Castro no estará finalizado antes de que acabe la legislatura, debido a la complejidad y lentitud de los trámites administrativos que rodean su desarrollo.

Así lo ha confirmado el alcalde, José Antonio Diez, quien insiste en que el proyecto, iniciado en 2021, "nunca se ha detenido", pero "avanza a un ritmo que impone la burocracia".

Un retraso que frena la llegada de nuevas empresas

La creación de este nuevo polígono industrial —ubicado junto a la carretera de Villarroañe, en el barrio de Puente Castro— pretende aliviar la falta de suelo industrial que sufre León, una carencia que, en palabras del alcalde a Radio León, “lastra las opciones de desarrollo económico de la ciudad”.

El Ayuntamiento aspira a ofrecer 65 nuevas hectáreas disponibles para el asentamiento de empresas, pero la tramitación urbanística hace inviable que las parcelas puedan estar operativas en el actual mandato.

Un proceso urbanístico encallado desde 2021

Tras más de cuatro años desde su anuncio inicial, la Junta de Castilla y León dio finalmente en febrero la aprobación definitiva a la modificación urbanística necesaria para reconvertir el uso de los terrenos. El ámbito de actuación afecta a 1.140.000 metros cuadrados, de los cuales 615.000 se destinarán directamente a uso industrial.

Pese a este avance, la maraña legal, los informes sectoriales y los procedimientos de desarrollo urbanístico siguen alargando los plazos, impidiendo que León disponga a corto plazo del suelo que tanto necesita.

Una ubicación estratégica pero con oposición ciudadana

El polígono se asentará en el extremo sur del municipio, entre la carretera de Villarroañe, el cementerio municipal, la bifurcación de la LE-20 y la Ronda Sur, el pueblo de Santa Olaja de la Ribera y el futuro complejo energético —con plantas solares y de combustión— proyectado por la Junta. Este último elemento ha generado fuerte contestación social y medioambiental.

“Es un proyecto que sigue su curso, pero la realidad es que los trámites administrativos hacen inviable su finalización en esta legislatura”, ha lamentado Diez. El regidor ha reiterado la necesidad de “agilizar los procedimientos” para que León no quede rezagada frente a otras ciudades con más capacidad para atraer inversión empresarial.